荣誉资质
相关资讯
- 户室电极式蒸汽加湿器
- 机房专用加湿器技术规范几大优点
- 机房加湿器_机房湿膜加湿器安装及注意事项
- 湿膜加湿器变频风机之变频器十大"酷刑"
- 工业商业环境适应加湿器
- 工业加湿器术语概念
- 关于印发《公共场所集中空调通风系统卫生管理
- 机房恒湿机压缩机,使用一定时间后为什么噪声
- 为什么需要加湿器、除湿机-加湿除湿设备的应用
- 柜式湿膜加湿器_红酒窖的储藏条件设备
- 智能与节能并存-机房恒湿机
- 筑质量大堤,迎世纪挑战
- 奥特思普舞动机房节能的脚步
- 精益求精,节能环保-—奥特思普的核心竟争力
- 选择比努力更重要!-奥特思普
- 奥特思普机房湿膜加湿机—绿色节能先锋
- 机房专用加湿器节能效果又获客户芳心!
- 机房恒湿机定期保养的重要性
- 科技创新,以质取胜-奥特思普发展理念
- 北京机房湿膜加湿机哪家好?
咨询热线:
400-910-9007
固话:010-57984660
邮箱:bjatsp@126.com
地址:北京市通州区马驹桥-
产品详情
-
联系我们

循环水湿膜加湿器_奥特思普SMXH系列加湿器
|
☆加湿量:3-900kg/h
|
☆风量:400-60000m3/h
|
☆功率:500w
|
☆电源:220v 50HZ
|
☆除湿量:---
|
☆适用面积:---
|
产品简介
----------------------------------------------------------------------
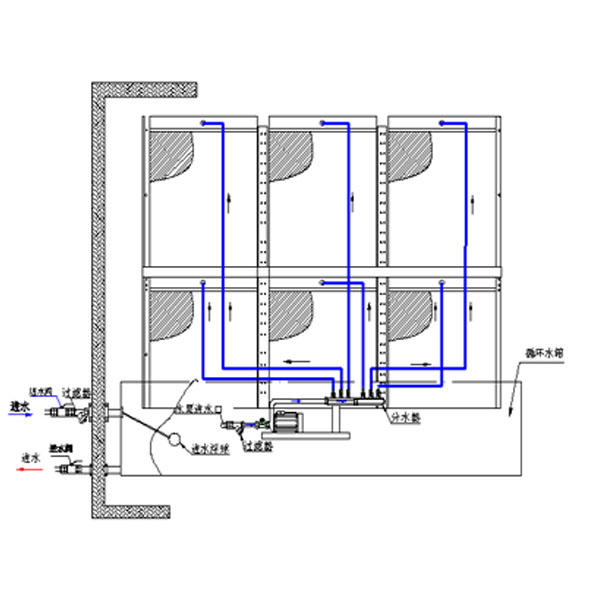
循环水湿膜加湿器工作原理:
循环水湿膜加湿器_奥特思普SMXH系列加湿器洁净的自来水(或冷冻水)通过进水管路送到循环水湿膜加湿器的循环水箱中,进入循环水箱的水是由浮球阀或液位开关来控制。循环水湿膜加湿器的水泵将水箱中的水送到湿膜顶部布水器,通过湿膜布水器将水均匀分布,水在重力作用下沿湿膜表面往下流,将湿膜表面润湿,当空气穿过潮湿的湿膜时,其湿度增加,温度下降,这一加湿过程称其为等焓加湿过程(注:当水温低于露点温度时,此过程为减焓加湿过程)。在这一过程中湿膜上的水被蒸发掉一部分,但不消耗额外的能量。从湿膜上,流下来的未蒸发的水流进循环水箱,再由循环水泵送到湿膜顶部,此过程循环往复。加湿降温用水可反复循环,节能节水效果好,系统除小型循环水泵耗能外无耗能部件。

循环水湿膜加湿器型号:
SM XH--50--W×H--A
SM--奥特思普蒸发式湿膜加湿器
ZP--湿膜加湿器供水方式(XH、ZP)
50--湿膜厚度(50、100、150、200、250、300)
W×H--空调表冷尺寸
A--A(有机湿材)、B(无机湿材)、C(金属湿材)
循环水湿膜加湿器外形尺寸的确定
循环水湿膜加湿器由湿膜加湿器主体部分(与直排水相同)和循环水箱两部分组成。湿膜加湿器主体部分的底部插入循环水箱内部托架,插入部分为30mm。
①循环水箱的长度L=空调换热器有效宽度W
②循环水箱的宽度W1=湿膜厚度D+200 总风量Q≤100000 m3/h
湿膜厚度D+250 100000<总风量Q≤150000 m3/h
湿膜厚度D+300 总风量Q>150000 m3/h
③循环水箱的高度H1=170mm 总风量Q≤100000 m3/h
230mm 100000<总风量Q≤150000 m3/h
300mm 总风量Q>150000 m3/h
④湿膜主体部分宽度W2=空调换热器有效迎风宽度W
⑤湿膜主体部分高度
H2=h-H1+70(mm)
h为空调自带的积水盘的底部到换热器有效迎风面高度的上沿的距离,H1为循环水箱高度。
⑥湿膜主体部分厚度的选择同直排水。
订购:循环水湿膜加湿器_奥特思普SMXH系列加湿器















48434550 

